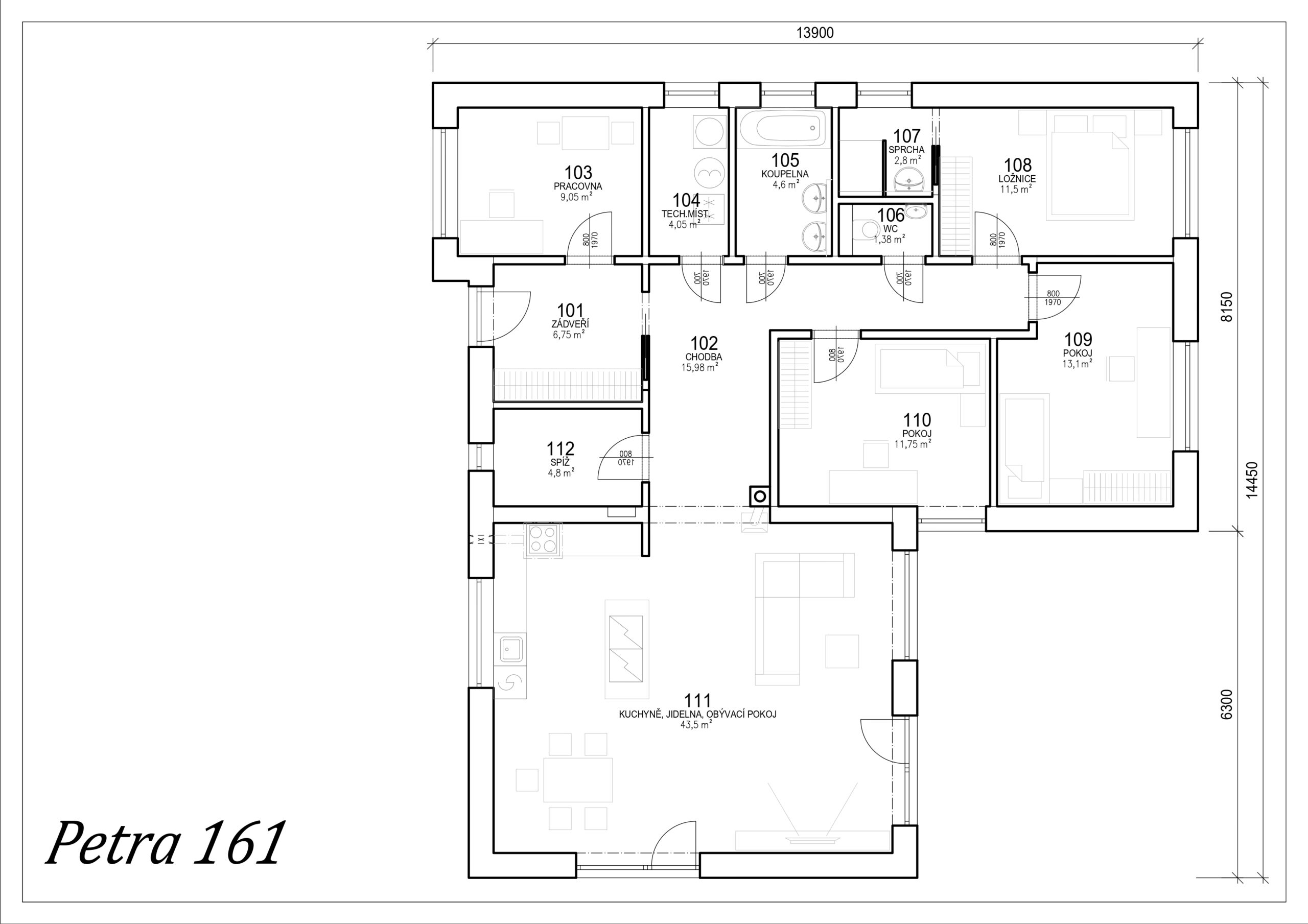
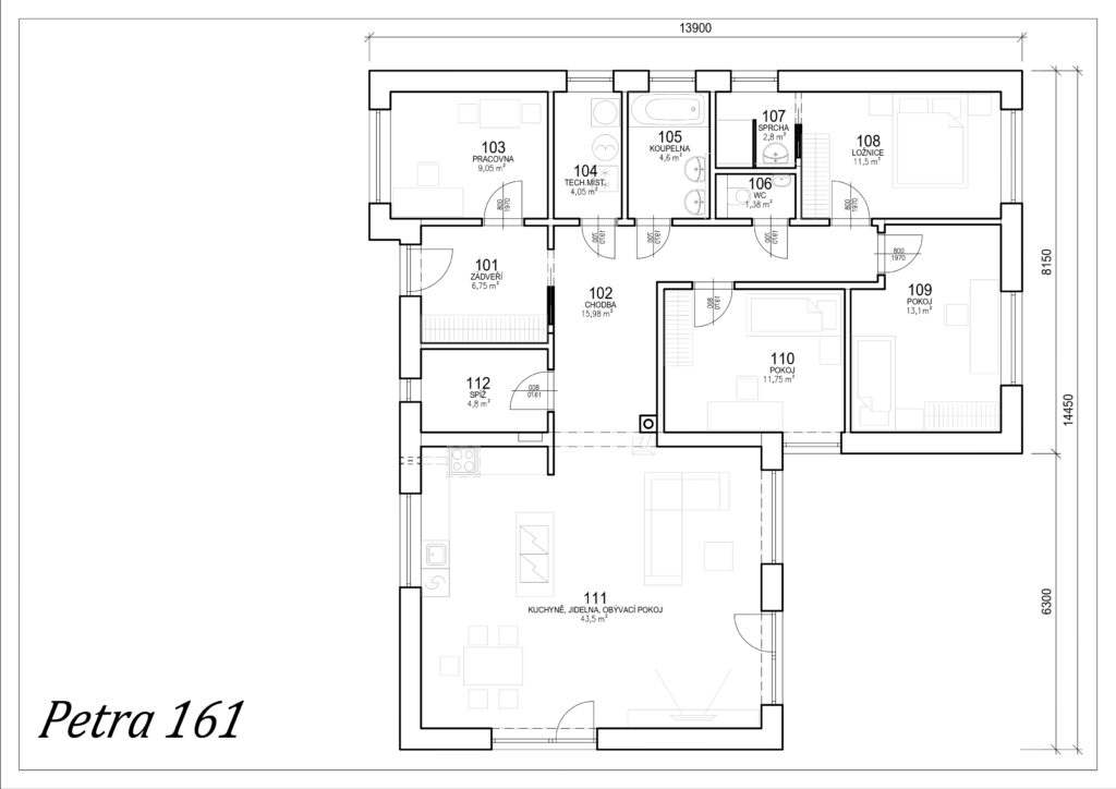
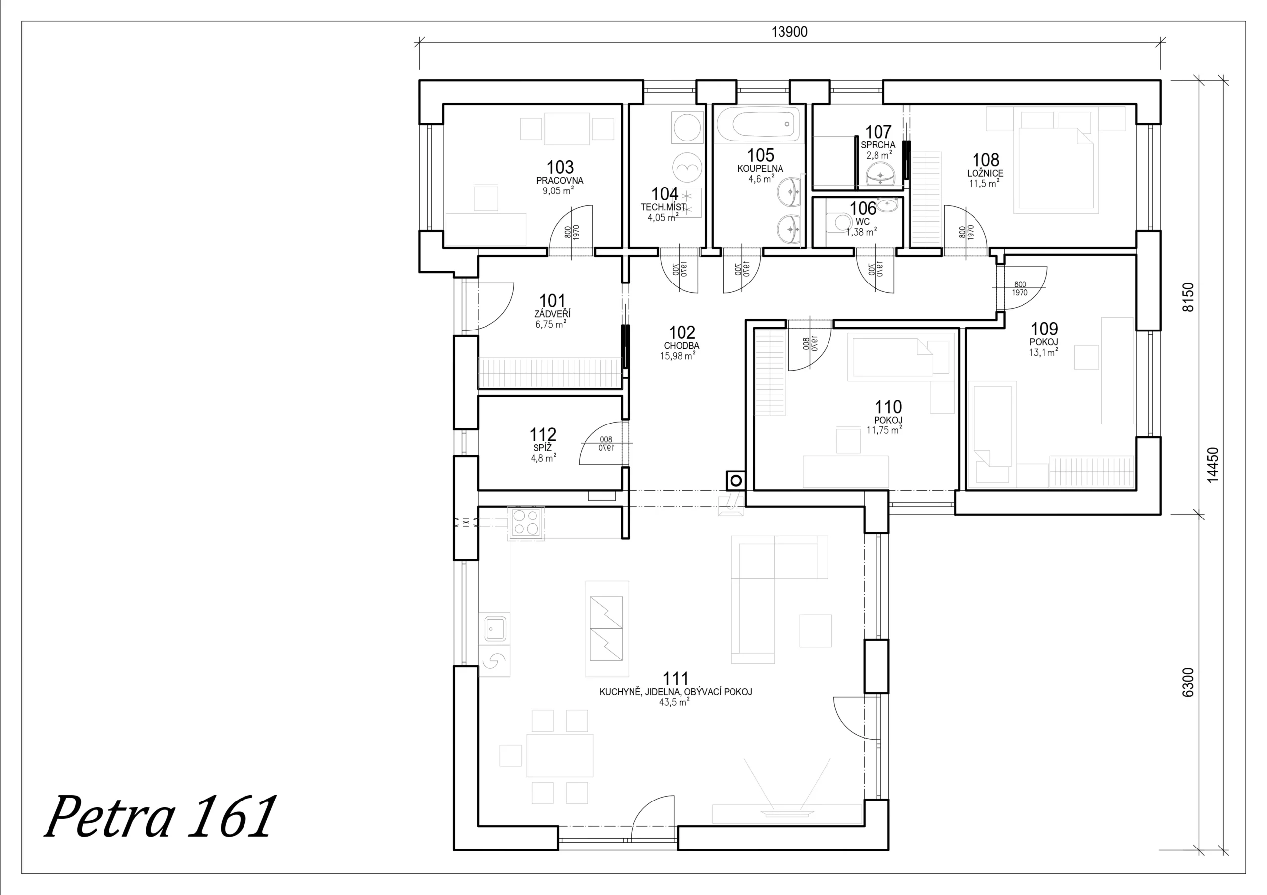
Petra 161

Od vize po realizaci

Rodinný dům Petra 161 s půdorysným tvarem písmene L nabízí velkou míru pohodlí a se svojí velikostí a množstvím obytných pokojů je vhodný pro velkou rodinu. Dům nabízí velké množství úložných prostor a samostatná sociální zázemí. Se zastavěnou plochou 161 m2 je tento dům vhodný na rozlehlé parcely.

Co obsahuje cena rodinného domu?

Základová deska

Součástí jsou:

  • položení zemnící pásoviny do výkopu pasu FeZn s vývody nad terén a veškerých prostupů,
  • betonáž základových pasů (C16/20) šířky 600 mm a výšky 500 mm,
  • vyrovnání (2 řady ztraceného bednění), navezení zásypu do základové desky a hutnění vibrační deskou,
  • položení ležaté kanalizace,
  • perforovaná roura na podtlakové odvětrání radonu s vývodem nad základovou desku (80 mm),
  • bednění (šalunk) pro základovou desku (150 mm),
  • položení kari sítí (150 x 150 x 6 mm),
  • betonáž základové desky (C20/25).

Obvodové stěny a konstrukce domu

  • Penetrace a navaření protiradonové hydroizolace na střední index radonu.
  • Založení soklového zdiva Porfix Premium P2-400 (tl. 375 mm) včetně zateplení XPS (60 mm).
  • Obvodové zdivo Porfix Premium P2-400 (tl. 500 mm) včetně překladů.
  • Vnitřní nosné zdivo Porfix P2-500 (tl. 250–300 mm).
  • Ukončení zdiva věncovkami Porfix s armovacím košem a betonem (C20/25).
  • Vnitřní nenosné stěny Porfix P2-500 (100–150 mm) včetně překladů.
  • U patrových domů stropní systém Porfix nebo stropní panely Spiroll.

Střecha

  • Přízemní domy: vazníková konstrukce dle statického výpočtu (včetně impregnace).
  • Patrové domy: vázaná konstrukce krovu dle statického výpočtu (včetně impregnace).
  • Difuzní fólie, kontralatě, laťování (impregnované) 40 × 60 mm.
  • Betonová taška s 50letou zárukou (barva dle výběru).

Klempířské prvky

  • Lakované klempířské prvky z PZn plechu v barvě střešní krytiny.

Okna

  • Izolační trojsklo (Ug = 0,5 W/m²K).
  • Šestikomorové profily s rámem (šířka 86 mm, Uf = 0,93 W/m²K).
  • Barva: bílá.

Podlaha

  • Tepelná izolace (EPS 100S, tl. 160 mm).
  • Separační fólie s přelepenými spoji.
  • Rozvod teplovodního podlahového topení.
  • Litý anhydrit nebo strojně hlazený beton.
  • Vinylová podlaha v rolích nebo dlažba.

Úpravy povrchů

  • Exteriér: stěrka s armovací tkaninou a silikonová omítka (1,5 mm).
  • Interiér: stěrka s armovací tkaninou a štuková omítka (obvodové konstrukce a příčky).

Schodiště

  • Přízemní domy: půdní schody dle projektu.
  • Patrové domy: železobetonové, pórobetonové nebo dřevěné schodiště.

Elektroinstalace

  • Kompletní rozvod silové kabeláže dle místností (zásuvky, vypínače, světla).
  • Zásuvky a vypínače: Tango.
  • Montáž rozvaděče a revizní zpráva.
  • Hromosvod dle projektové dokumentace.

Podhledy a tepelná izolace

  • SDK podhledy s parotěsnou fólií a minerální vatou (400 mm) pro přízemní domy.
  • U patrových domů podhledy dle projektové dokumentace.

Vodoinstalace

  • Rozvody vody (plast PPR, ukončení roháčky).
  • Odpady (HT nebo KG trubky).

Vytápění a TUV

  • Tepelné čerpadlo vzduch–voda (Nord-Line 9,5 kW).
  • Podlahový rozdělovač dle projektové dokumentace.
  • Teplovodní podlahové vytápění v celém domě.
  • Elektrický žebřík v koupelně.
  • Ohřev vody pomocí bojleru (100 l).

Sanita a vybavení koupelen

  • Zařizovací předměty dle projektu:
    • Závěsný systém GEBERIT.
    • Keramická mísa, prkénko a tlačítko GEBERIT.
    • Skříňka s umyvadlem (55 cm).
    • Vana a sprchový kout (do 8 000 Kč).

Interiérové dveře

  • Obložkové zárubně a dveře v dekoru Dub Sonoma:
    • Plné dveře pro zádveří, WC a koupelnu.
    • Prosklené dveře pro ostatní místnosti.

Jak to probíhá?

Chcete postavit dům?

Chcete si splnit sen o vlastním bydlení, ale nevíte, kde začít? Klikněte na tlačítko níže a získejte nezávaznou konzultaci zdarma – rádi vás nasměrujeme a pomůžeme vám udělat první krok k vašemu vysněnému domu!

Líbí se vám tato stavba?

Zanechte nám kontakt a my se vám brzy ozveme.
Pomůžeme vám s cestou k vysněnému bydlení.

Kvalitní bydlení, kde začínají vaše příběhy

Žádné platby předem
Dostupné bydlení pro každého
Zděný dům za cenu dřevostavby
Ekonomické provozní náklady
Projektová dokumentace v ceně
Vyřízení stavebního povolení v ceně
Autorský dozor v ceně
Možnost osobní prohlídky rozestavěných domů

Byty na prodej - Brodek u Prostějova

od developera